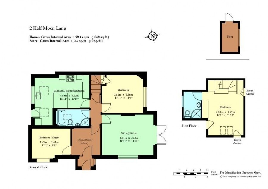
This Gough Cooper semi-detached house is situated towards the head of this quiet residential cul-de-sac. The property is a much enjoyed family home and benefits from a small rear extension behind the garage enlarging the kitchen and providing a useful downstairs lobby and cloakroom. Other benefits include a separate dining room with access to the garden and terrace, refitted family bathroom, block paved driveway, garage and front and rear gardens complete this versatile family accommodation.
- Gough Cooper Semi-Detached Family Home
- Popular Residential Cul-De-Sac Location
- Sitting Room with Bay Window & Open Fireplace
- Dining Room
- Extended Kitchen & Cloakroom
- Three Bedrooms
- Family Bathroom
- Attractive Block Paved Driveway Offering Parking for Several Vehicles
- Single Garage
- Front Garden and Pretty Enclosed Rear Garden
Accommodation
•Porch canopy, front door leading to hallway with stairs rising to first floor, display shelf with fitted mirror, wooden multi-paned doors leading to sitting room and kitchen, under stairs cupboard housing meters.
•Bright sitting room having bay window to front, working open fireplace with exposed brick surround, wooden mantle and cast-iron grate, built in cupboard and book shelves to chimney breast recesses, open archway through to:-
•Dining room with double glazed patio doors opening to the rear terrace and door to kitchen.
•Extended kitchen arranged in two areas with dividing archway and window overlooking the rear garden, fitted with a range of wooden wall cabinets and base units, 1½ bowl ceramic sink with mixer tap inset to oak effect worktops and mosaic tiled splashback, built in double oven, five ring gas stove inset to worktop above with stainless steel extractor hood over. Space and plumbing for dishwasher and washing machine, space for freestanding fridge freezer, matching tall pantry unit and built in under stairs cupboard, wall mounted Worcester boiler. Skylight window, spot lighting and ceramic tiled floor throughout.
•Rear lobby with double glazed door to garden and sliding door to cloakroom comprising close coupled w.c, wall mounted corner basin, mosaic wall tiling, opaque window and vinyl flooring.
•Bright landing with window to side on half landing, access to loft space via hatch with light, wooden panelled doors to bedrooms and:-
•Refitted family bathroom white suite comprising panelled bath with thermostatic wall mounted shower on riser and glazed screen, close coupled w.c, vanity unit with wash basin and cupboards below, fitted vanity mirror, mosaic tiled effect flooring, inset lighting and two opaque windows to side.
•Approached over a block paved driveway to front offering ample off road parking, along with sizeable front garden comprising lawn, shrub and flower borders including Rose and Peony tree, pathway and step to front door with external coach lantern.
•Pretty enclosed rear garden with paved terrace having an awning and further paved seating area, mainly laid to lawn with fenced boundaries, mature shrub and flower borders.
•Garage with up and over door to front, power and light.
•Services: All mains services. Gas central heating. Double glazed windows.
•Council Tax Band: E - Tonbridge & Malling Borough Council
•EPC: D
Hildenborough
This popular village offers local shops and post office and amenities including medical centre, village hall, church, public house, library and Ridings Café. The weekly farmers’ market is a popular meeting place for the local community, whilst the mainline station offers services to London Charing Cross (via Waterloo East) and Cannon Street with commuter bus service from Brookmead to the station. Well regarded schools include Stocks Green and Hildenborough primary schools, grammar schools in Tonbridge, Sevenoaks and Tunbridge Wells including Judd and The Skinners School, together with Sackville and Fosse Bank in the village. The A21 by-pass links to the M25 motorway network to London, the south coast, major airports, the Channel Tunnel and Bluewater shopping centre while nearby towns of Sevenoaks and Tonbridge offer comprehensive shopping and recreational facilities. Leisure facilities include Nizels Golf and Country Club, Hilden Golf Driving range with gym, cricket at The Vine in Sevenoaks and Sevenoaks Rugby Club.
Floorplan
EPC
Local Schools
To discuss this property call our Hildenborough branch:
Market your property
with James Millard
Book a market appraisal for your property today. Our virtual options are still available if you prefer.
