An ideal opportunity to acquire this detached two/three bedroom bungalow situated in the heart of the idyllic Kentish village. This well-maintained property is key-turn ready and certainly has scope for extensions subject to planning.
- Detached Two/Three Bedroom Bungalow
- Situated in the Heart of the Village off the Green
- Conservatory
- Two/Three Bedrooms
- Kitchen with breakfast bar
- Shower Room with Separate Toilet
- Front Garden with Driveway
- Single Garage
- Delightful Private Rear Garden
- *Scope for Extension Subject to Planning
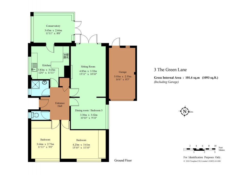
Accommodation
•Central entrance hallway having double glazed white UPVC front door, access to loft via hatch, built-in airing cupboard containing immersion heater.
•Dual aspect modern sitting/dining room, with new carpets, patio doors leading out into the garden, Hillary's shutters and a focal feature fireplace. Opportunity to easily split off the sitting and dining room to create a third bedroom.
•Kitchen, fitted with a range of matching white wall cabinets with black laminate worktops and tiled splash back. Integrated Bosch double oven and hob, freestanding dishwasher, washing machine and fridge/freezer. Hillary's shutters frame the double glazed windows above the sink unit. Ceramic floor tiles throughout and a translucent glazed door leads out into the conservatory.
•Bright conservatory with opaque roof, double glazed upvc windows and doors providing views and access to the pristine private garden, Ceramic floor tiles and economy 7 storage heater.
•Shower room is fitted with shower cubical housing an electric shower and separate pedestal wash basin, tiled walls and opaque window. Separate second white close coupled w.c having access from the hallway.
•Two double bedrooms accessed off the central hallway, both with aspect to front, built in wardrobes and Hillary's shutters.
•The property is approached over a gravel driveway providing off road parking with access to the garage and side access to the rear garden whilst being bordered with flower beds and hedging.
•Single garage up and over door to front and personal door to rear allowing access to rear garden.
•The rear garden enjoys a private setting, being laid to lawn with a small patio area, outside tap, two sheds recently fenced boundaries and well stocked mature shrub/flower beds.
·Council Tax Band: – E – Sevenoaks District Council
·Electric central heating. Mains drainage. Mains Water. Double glazed throughout.
·EPC: E
Situation
The property is situated just off the green in this picturesque and vibrant village renowned for its charming mock Tudor listed buildings and its idyllic village green, where cricket matches paint a quintessentially English summer scene with countryside walks direct from the doorstep, including Haysden lakes.
Located within the High Weald Area of Outstanding Natural Beauty and a designated conservation area, the village boasts a wealth of amenities including Leigh primary school, church, recently revitalised village store, recycling centre, post office, local hairdressers, public houses within walking distance, royal legion, village hall offering numerous activities, cricket, tennis, rugby and fishing clubs with the National cycle route running through the village from Penshurst Place to Tonbridge.
Conveniently located Leigh Railway Station offers services to London Victoria/Charing Cross via the Tonbridge/ Redhill line and Gatwick airport, with bus routes available from the village 210/235.
Floorplan
EPC
Local Schools
To discuss this property call our Hildenborough branch:
Market your property
with James Millard
Book a market appraisal for your property today. Our virtual options are still available if you prefer.
