CHAIN FREE An extended semi-detached three double bedroom bungalow is situated on a private gated plot in a quiet residential lane, set within a conservation area and close to the village green. The current vendors have improved the property throughout, extending the kitchen, installing solid oak internal doors, refitting the kitchen and bathroom and adding an en-suite shower room to the first floor main bedroom. The property also benefits from a private part walled courtyard garden and gated driveway offering ample off-road parking.
- Semi-detached Chalet Bungalow
- Situated in the Heart of the Village
- No Onward Chain
- Three Double Bedrooms
- Extended Kitchen/Breakfast Room
- First Floor Main Bedroom with En-Suite Shower Room
- Courtyard Garden
- Gated Driveway
- External Brick Store Room
- Close to Village Green
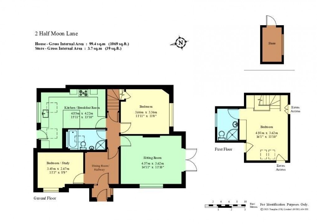
Accommodation
•Entrance porch with inset lighting, dado rail and attractive wooden and coloured glazed leaded light front door to entrance hallway having air conditioning unit, dado rail and radiator with decorative cover.
•Bright dual aspect sitting room with papered chimney breast and painted wooden fireplace surround with electric coal effect fire set on a marble hearth. Air conditioning unit, wall light points, leaded light window to side and patio doors opening to the courtyard garden.
•Attractive kitchen/breakfast room finished in a range of cream shaker style wall mounted cabinets and base units of cupboards and drawers with complimenting wood block worktops, brick tiled splashback and matching peninsular breakfast bar. Ceramic butler sink, dual range cooker with metro tiled splashback and glazed side cabinets, integrated dishwasher, space for washing machine and fridge and space for freestanding fridge/freezer. Skylight windows, window and door to side alley, cupboard housing Worcester combination boiler, ceramic tiled flooring, and inset ceiling lighting.
•Ground floor second bedroom with aspect to front overlooking the courtyard garden and built in cupboard. Third bedroom also with aspect to front currently utilised as a study and could also be used as a dining room if required.
•Modern ground floor family bathroom comprising raised panelled bath, vanity unit with concealed cistern w.c and basin, corner tiled shower enclosure with rainfall head and glazed doors, part tiled walls with border tiles, column style radiator and skylight window.
•First floor main bedroom having two skylight windows, air conditioning unit, two built in wardrobes, three eaves storage cupboards and door to:-
•En-suite shower room comprising tiled corner shower enclosure with rainfall head, border tile and glazed screen, close coupled w.c, pedestal basin and opaque window.
•Pretty courtyard part walled garden with mature hedging and brick paved terrace with established shrub/flower borders, wooden pergola and wooden gate leading to the driveway, accessed via double wooden gates. Brick store room with window, power and light, gate to side alleyway with external tap.
•All mains services: Gas central heating. Air conditioning units. Double glazed windows.
•Council Tax Band: D - Tonbridge & Malling
•EPC: D
Hildenborough
This popular village offers the One Stop shop/post office, chemist, hairdresser, Ridings café, medical centre, village halls, church, public house and library. The weekly farmers’ market is a popular meeting place for the local community, and the mainline station offers services to London Charing Cross (via Waterloo East) and Cannon Street with commuter bus service to the station. Well regarded schools include Stocks Green and Hildenborough primary schools, grammar schools in Tonbridge, Sevenoaks and Tunbridge Wells including Judd and The Skinners School, together with Sackville in the village. The A21 by-pass links to the M25 motorway network to London, the south coast, major airports, the Channel Tunnel and Bluewater shopping centre while the nearby town Tonbridge offers comprehensive shopping and recreational facilities and a Main Line Station. Leisure facilities include Nizels Golf and Country Club, Hilden Golf Driving range with gym, cricket at The Vine in Sevenoaks and Sevenoaks Rugby Club.
Floorplan
EPC
Local Schools
To discuss this property call our Hildenborough branch:
Market your property
with James Millard
Book a market appraisal for your property today. Our virtual options are still available if you prefer.
