This detached four bedroom Craftcast chalet bungalow is situated in a quiet residential area, close to popular local schools and amenities. The property is presented in good order, providing versatile family living accommodation, the current vendors having upgraded throughout with the addition of a contemporary ground floor shower room and modern refitted kitchen/dining room forming the hub of the home.
- Detached Craftcast Chalet Bungalow
- Quiet Residential Area
- Spacious & Versatile Accommodation
- Modern Refitted Kitchen/Breakfast Room
- Beautiful Secluded Rear Garden
- Car Port & Garage
- Four Bedrooms
- Contemporary Ground Floor Shower Room
- Conservatory/Dining Room
- First Floor Bathroom
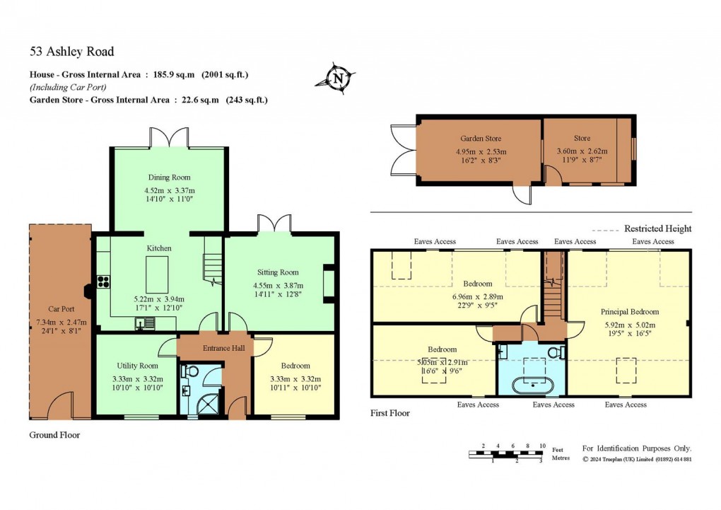
Accommodation
•Bright L-shaped entrance hallway, light oak effect high quality laminate flooring installed throughout the ground floor.
•Contemporary refitted ground floor shower room fitted with a contemporary white suite comprising vanity unit with concealed cistern w.c, basin and cupboards, corner shower cubicle with wall mounted thermostatic shower, rainfall head and curved glazed screen. Stone tiled flooring with underfloor heating.
•Sitting room with lovely aspect overlooking the rear garden with French doors to terrace. Chimney fitted with a wood burning stove set on a stone hearth.
•Ground floor family room/bedroom four, a versatile room with aspect to front currently utilised as a playroom.
•Modern refitted kitchen/breakfast room fitted with a comprehensive range of charcoal wall mounted cabinets and base units of cupboards and drawers with central island unit and contrasting white worktops with breakfast bar return and metro tiled splashback. Sink, fully integrated dishwasher, oven, gas hob and built in extractor over, integrated under counter fridge. Attractive solid oak staircase rising to the first floor and open archway to conservatory/dining area with lovely outlook over the rear garden and French doors to terrace.
•Large separate utility room, wall mounted Ideal gas fired boiler, space and plumbing for washing machine and tumble dryer.
•First floor small landing area, dual aspect principal bedroom with dormer window to rear overlooking the garden, Velux and eaves storage. Second bedroom also with window to rear overlooking the garden, Velux and eaves storage. Third bedroom with Velux and eaves storage space.
•First floor family bathroom fitted with a white suite comprising freestanding roll top bath, close coupled w.c, vanity unit with basin, fitted cupboard and eaves storage.
•The property is approached over a paved driveway with garden to side, fenced boundaries with wooden gate leading to the car port and single concrete garage/storage area with power and light, attached timber garden shed/store, located at the rear.
•A particular feature of the property is the secluded rear garden with terrace, mainly laid to lawn with fenced boundaries and shrub/flower borders, attractive mature hedging and trees forming the rear boundary.
•Services & Points of Note: All mains services: Gas fired central heating, new boiler installed 2023. Double glazed windows, replaced in 2023. New electric meter and fuse board installed 2022.
•Council Tax Band: E - Tonbridge & Malling Borough Council
•EPC: C
Hildenborough
This popular village offers local shops and post office and amenities including medical centre, village hall, church, public house, library and Ridings Café. The weekly farmers’ market is a popular meeting place for the local community, whilst the mainline station offers services to London Charing Cross (via Waterloo East) and Cannon Street with commuter bus service from Brookmead to the station. Well regarded schools include Stocks Green and Hildenborough primary schools, grammar schools in Tonbridge, Sevenoaks and Tunbridge Wells including Judd and The Skinners School, together with Sackville and Fosse Bank in the village. The A21 by-pass links to the M25 motorway network to London, the south coast, major airports, the Channel Tunnel and Bluewater shopping centre while nearby towns of Sevenoaks and Tonbridge offer comprehensive shopping and recreational facilities. Leisure facilities include Nizels Golf and Country Club, Hilden Golf Driving range with gym, cricket at The Vine in Sevenoaks and Sevenoaks Rugby Club.
Floorplan
EPC
Local Schools
To discuss this property call our Hildenborough branch:
Market your property
with James Millard
Book a market appraisal for your property today. Our virtual options are still available if you prefer.
