GUIDE PRICE: £800,000-£825,000 FREEHOLD Attractive detached extended three/four bedroom bungalow occupying a delightful plot with landscaped secluded rear garden and tree lined outlook backing woodland. This delightful property offers highly versatile family accommodation, presented in lovely order, offering scope for further extension, subject to planning and ideally situated within walking distance of the popular Stocks Green Primary school.
- Attractive Detached Extended Bungalow on Excellent Plot
- Situated in a Desirable Location Backing Westwood
- Three/Four Bedrooms
- Walkable to Stocks Green Primary School
- Study/Bedroom & Spacious Utility & Storage Room
- Exceptional Open Plan Kitchen/Dining/Living Space with Glazed Link
- Family Room/Bedroom
- Front Garden & Gravel Driveway
- Landscaped Rear Garden with Raised Decked Terrace
- Tree Lined Outlook
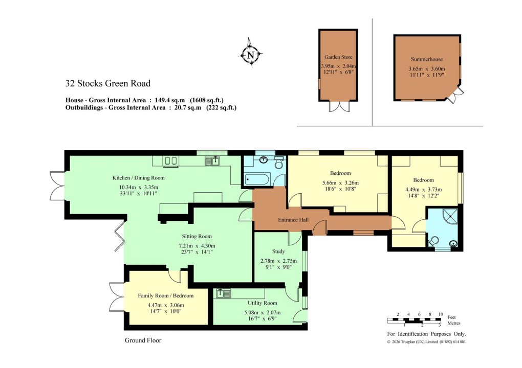
Accommodation
•The property is approached over a gravel driveway providing ample parking and turning space leading to the front door which opens to a spacious L-shaped entrance hallway providing access to all the principal rooms and access to the loft space via hatch.
•Main bedroom suite with aspect to front, fitted with a comprehensive range of Sharps bedroom furniture including wardrobes, high level cupboards and chest of drawers and en-suite shower room fitted with a white suite comprising corner shower cubicle with Aqualisa shower, corner vanity unit with basin and toilet.
•Spacious second bedroom having two windows with aspect to side, also fitted with a comprehensive range of Sharps bedroom furniture, comprising wardrobes, cupboards and dressing table. Agents note: This was previously two bedrooms which could be reinstated if required.
•Off the hallway you enter into the study/bedroom, a versatile space with engineered oak flooring and a door providing access to the generous utility/storage room having a window and door to front, base unit and laminate worktop, space and plumbing for washing machine and ceramic tiled flooring.
•Exceptional dual aspect open plan kitchen/dining/living space. Kitchen fitted with a comprehensive range of Howdens oak wall mounted cabinets and base units of cupboards and drawers with contrasting Corian worktops. Focal Rayburn oven also providing heating and hot water, space for dishwasher and American style fridge/freezer. Dining room having French doors opening to the rear decking, glazed link with fitted blinds and bi-folds also opening onto the rear deck, seamlessly flowing through to the sitting room with feature wallpaper to one wall, dimmable lighting and smart column radiator. Engineered oak flooring throughout the space.
•Family room/third bedroom with lovely aspect over the rear garden and French doors, smart column radiator and inset lighting, currently utilised as a home office, highly versatile space, ideal as an additional bedroom or playroom.
•Contemporary family bathroom fitted with a white suite comprising panelled bath with Aqualisa power shower over, vanity unit with concealed cistern toilet, basin and countertop, chrome heated towel rail, cupboard housing hot water cylinder with immersion and ceramic tiled flooring.
•A delightful feature the rear garden extends to approximately 130ft in length, a large raised decked seating area, ideal for al fresco dining and summer entertaining with timber balustrade extends across the back with steps leading down to the lawn. External power sockets, security lighting, tap and side access. Mature flowering cherry tree and shrub/flower borders, fenced boundaries with a pathway meandering to the rear of the garden where you will find a natural brook with wooden bridge and picket fencing leading to a further area of garden and gate providing access to Westwood. Timber cabin with power, ideal as a home office or playroom and timber garden shed also with power.
•Services & Points of Note: All mains services. Gas central heating via Rayburn in kitchen. Oak internal doors. Double glazed windows. House alarm smart system.
•Council Tax Band: F – Tonbridge & Malling Borough Council
•Agents Note: Lapsed planning permission Ref:18/00177/FL for enlargement of roof to create additional first floor accommodation with rear dormer and three roof light windows to front elevation.
•EPC: D
Situation
The property is conveniently located on the outskirts of Hildenborough with the popular towns of Tonbridge, Sevenoaks and Tunbridge Wells nearby. Close to public woodland and footpaths offering walks direct from the doorstep. Walkable to the popular Stocks Green Primary School with the BP garage nearby with M&S food offering day to day amenities and the recently opened Never Say Never Elite pub. The popular village of Hildenborough offers local shops, post office and amenities including medical centre, village halls offering social activities and classes, church, public house, library and Ridings Café. The weekly farmers’ market is a popular meeting place for the local community. Tonbridge is a market and commuter town situated on the banks of the river Medway with Norman Castle and riverside park, offering an excellent range of High Street shops, supermarkets, coffee shops and restaurants. Main line stations in Tonbridge and Hildenborough offer fast frequent services to London Charing Cross/Cannon Street and London Bridge. The A21 by-pass links to the M25 motorway network to London, the south coast, major airports, the Channel Tunnel and Bluewater shopping centre. Well regarded primary schools include Stocks Green and Hildenborough CofE. Grammar schools in Tonbridge, Sevenoaks and Tunbridge Wells including Judd, Tonbridge Grammar School and Weald for Girls and The Skinners School. Private schools including Sackville, Hilden Oaks, Hilden Grange Sevenoaks and Tonbridge School. State secondary schools in Tonbridge including Hayesbrook and Hillview. Leisure facilities include Tonbridge Park offering open air swimming pool, tennis courts and children's play areas. Nizels Golf and Country Club, Hilden Golf Driving range with gym, cricket at The Vine in Sevenoaks and Sevenoaks Rugby Club.
Floorplan
EPC
Local Schools
To discuss this property call our Hildenborough branch:
Market your property
with James Millard
Book a market appraisal for your property today. Our virtual options are still available if you prefer.
