This deceptively spacious end of terrace three bedroom property is located in a quiet cul-de-sac in the small village of Chiddingstone Causeway. This appealing property is presented in lovely decorative order throughout with the benefit of an updated Shaker style kitchen, modern first floor bathroom and replacement boiler in recent years and is being sold with the benefit of no onward chain.
- End of Terrace Village Family Home
- Quiet Residential Cul-De-Sac Setting
- Three Bedrooms
- Updated Kitchen/Dining Room
- Separate Sitting Room
- Ground Floor Cloakroom
- Contemporary First Floor Bathroom
- Pretty Front Garden
- Raised Rear Garden & Terrace
- No Onward Chain
Accommodation
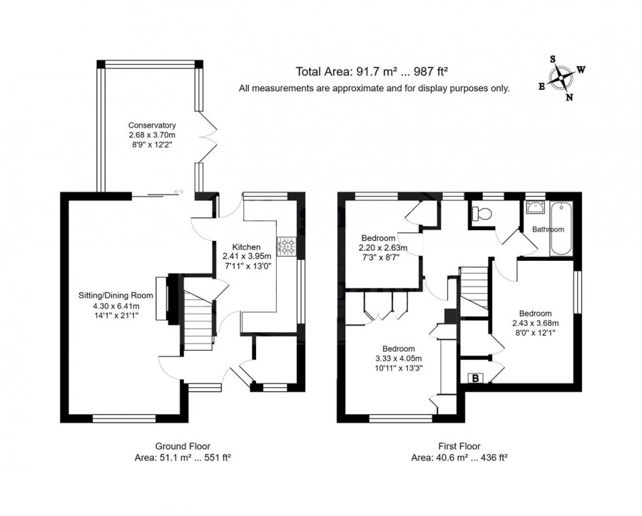
•This delightful family home is approached over a pathway leading to the front door, opening to the welcoming entrance hallway with staircase rising to the first floor, two deep storage cupboards and smart Karndean flooring. Ground floor cloakroom fitted with a white suite comprising close coupled toilet and corner basin.
•Kitchen/dining room fitted with a comprehensive range of cream Shaker style wall mounted cabinets and base units of cupboards and drawers with contrasting wood effect worktops, upstands and smart metro tiled splashbacks. Fitted electric oven with induction hob over and fitted extractor. Space for dishwasher, washing machine and freestanding fridge/freezer and ample room for dining table and chairs.
•Bright, airy and spacious sitting room with picture window overlooking the rear garden and door leading to the rear terrace.
•First floor landing with deep walk in storage cupboard and hatch providing access to the part boarded loft space.
•Main double bedroom with aspect to rear overlooking the rear garden. Second double bedroom enjoying an aspect to front with distant views and third single bedroom with aspect to rear.
•Externally there is an attractive front garden, mainly laid to lawn with fenced and Hawthorn hedged boundaries. Pathways lead from the front gate round to the side having a wooden gate providing access to the rear garden. Oil tank and external Worcester oil fired combination boiler.
•To the rear there is a sunny paved terrace with steps to a raised lawn with established shrub/flower borders, timber garden shed and fenced boundaries.
·Council Tax Band: D - Sevenoaks District Council
·Services & Points of Note: Mains water, drainage and electricity. Smart meter. Oil central heating, Worcester external boiler, installed June 2019 and external oil tank. Unrestricted parking on road.
·EPC: D
Situation
Richards Close is a small residential cul-de-sac situated in Chiddingstone Causeway, a small village which provides a local store, church and post office together with The Little Brown Jug Public House and the convenient local Penshurst railway station, walkable from the property (to Redhill, Gatwick or Tonbridge). The village hall is a thriving Arts & Social Centre offering a wide range of activities for all the community and is also available to hire. The highly regarded Greyhound Pub can be found in the nearby hamlet of Charcott. It is also within the catchment area of the popular Chiddingstone Primary School and local grammar schools. Mainline stations to London may be found at nearby Hildenborough with fast connections to London, with main line stations and a wider range of shopping, educational and recreational facilities in the towns of Edenbridge, Sevenoaks and Tonbridge. The property is surrounded by beautiful countryside, being part of the High Weald Area of Outstanding Natural Beauty with walks from the doorstep, the National Trust village of Chiddingstone is nearby together with Leigh, a charming mock Tudor village with vibrant Village Green and station. Penshurst, Hever Castle and Penshurst Place, all popular local tourist attractions. Convenient access to the A21 ensures swift connections to the national motorway network, Gatwick, Stansted, and Heathrow Airports, the Channel Tunnel, and the Kent coast.
Floorplan
EPC
Local Schools
To discuss this property call our Hildenborough branch:
Market your property
with James Millard
Book a market appraisal for your property today. Our virtual options are still available if you prefer.
