GUIDE PRICE £575,000 - £600,000 Charming semi-detached three bedroom cottage enjoying an idyllic rural setting in the desirable hamlet of Brasted Chart, constructed by local builders R.Durtnell & Sons in 1947. This country home has been a much loved retreat for the current vendors for over 30yrs offering a peaceful haven to relax and unwind. The amenities and commuter links of Sevenoaks are within easy reach, and nearby, the recreational ground offers space for local community events, coupled with an abundance of countryside walks from the doorstep.
- Charming Semi-Detached Country Cottage
- Situated in a Desirable Rural Hamlet
- Sitting/Dining Room with Bay Window
- Shaker Style Country Kitchen
- Close to the Community Recreation Ground
- Three Bedrooms
- Ground Floor Cloakroom & First Floor Bathroom
- Delightful Cottage Rear Garden & Pretty Front Garden
- No Onward Chain
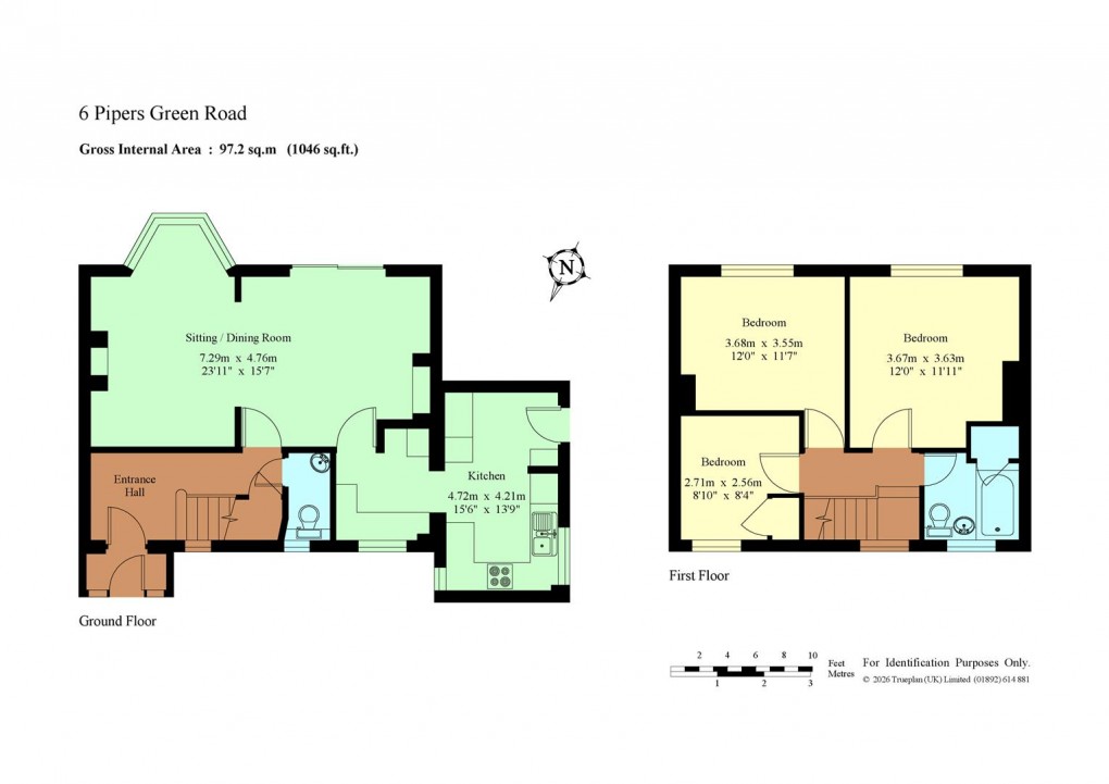
Accommodation
•This delightful cottage is approached over a shared pathway leading to the enclosed porch with front door opening to the welcoming entrance hallway having stairs rising to the first floor, understairs storage cupboard and ground floor cloakroom with close coupled toilet and basin.
•Bright sitting/dining room with bay window offering a delightful view over the rear gardens, along with an attractive brick fireplace with basket and copper canopy and matching brick side shelves and bookshelves to recesses. Dining area also enjoying sliding patio doors providing access to the rear terrace and a lovely sunny spot to read and relax.
•Shaker style split level country kitchen fitted with a comprehensive range of cream wall mounted cabinets and base units of cupboards and drawers, laminate worktops and tiled splashbacks. Modern appliances include eye level double Neff oven and hob with extractor, space for dishwasher, washing machine, upright fridge and under counter freezer. Wall mounted Worcester LPG boiler and door to side access.
•First floor landing with window to side and access to part boarded generous loft space via hatch with drop down ladder and light.
•Main double bedroom enjoying a lovely outlook over the rear garden. Second double bedroom also with aspect to rear overlooking the garden and third small double bedroom with deep storage cupboard over stair recess and attractive outlook to the front.
•The family bathroom completes the first floor accommodation, fitted with a white suite comprising panelled bath with electric shower over, curtain and rail and vanity unit incorporating the basin and concealed cistern toilet, tiled with attractive border tiles. Airing cupboard housing hot water cylinder and fitted immersion.
•Pretty front cottage garden with shared pathway and side access via wrought iron gate to the rear garden, beautifully tended providing a tranquil setting. Paved terrace and steps leading to the main area of lawn bordered with rhododendron and some privet hedging providing privacy and lawns flanked with established and fragrant herbaceous borders, azaleas, winter jasmine, clematis, rhododendrons and camellias. A rose arbour leads to a further area of garden with garden shed and screened LPG tank.
•Services & Points of Note: Mains electricity, water and drainage. LPG central heating, boiler replaced in 2017. Anglian double glazed windows replaced in 2009. Replaced flat roof over kitchen 2025. Free car park at the entrance to Pipers Green Road, unofficial parking shared with neighbouring properties.
•Council Tax Band: E – Sevenoaks District Council
•EPC: F
Situation
The property is situated in the sought after rural hamlet of Brasted Chart on the outskirts of Brasted, with a vibrant and friendly community holding annual events on the recreation ground with The Brasted Diary a bi-monthly local publication keeping residents up to date with news and events. Brasted is also known for its antique shops and with a range of local shops, traditional award-winning pubs and a medical centre. The village is surrounded by some of the finest protected greenbelt and Areas of Outstanding Natural Beauty countryside in Kent with renowned National Trust properties and walks direct from the property, including Toys Hill, Emmets Garden and Chartwell surrounded by spectacular bluebell woods. Nearby Sundridge offers a primary school, while the highly regarded Radnor House School is also within reach. The historic town of Westerham, just two miles away offers a good number of local shops, a medical centre, library, Parish Council offices and various cafes, restaurants and pubs within the town. Sevenoaks town centre is about five miles with its wider range of shops, restaurants, cinema/theatre complex, swimming/leisure centre and main library. Sevenoaks also has a main line station with fast services on the Charing Cross/Cannon Street. The area is well known for its schooling, both state and independent, and there is a wide range of leisure activities in the area including golf at Westerham. There is access to the M25 motorway at Chevening, Junction 5, or Godstone, Junction 6, which provides access to the motorway network, airports and the coast.
Floorplan
EPC
Local Schools
To discuss this property call our Hildenborough branch:
Market your property
with James Millard
Book a market appraisal for your property today. Our virtual options are still available if you prefer.
