Accessed through double electric gates to an in and out gravel driveway, The Horseshoes is a uintessential and most attractive Grade II listed detached cottage believed to date back to the 16th century with later additions. Additionally, there is a self-contained, one bedroom accommodation. All set within delightful gardens.
- Grade II Listed Detached Cottage
- Listed Barn
- 1 Bedroom Annexe with En-Suite Shower and Kitchenette
- Delightful Gardens totalling just over a third of an acre
- Semi-Rural Location
- Four bedrooms with 2 en-suites
- Kitchen breakfast room
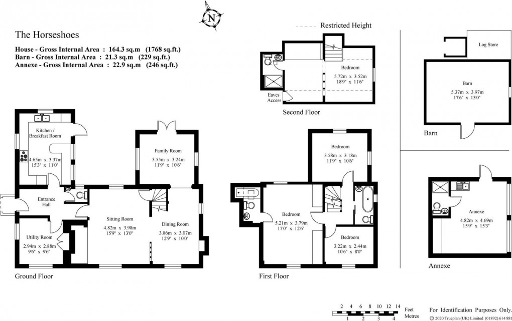
Accommodation
- The property retains many period features such as exposed wall and ceiling timbers, inglenook fireplace, wooden floors, and leaded light casement windows.
- Access through a covered entrance porch with wooden door.
- Dual aspect sitting room with a brick inglenook fireplace with bressummer beam, leading to the dining room with stairs to the first floor. The family room, adjacent to these areas, offers direct access to the terrace and garden, seamlessly extending the living space.
- Triple aspect kitchen with custom painted wooden units, granite work surfaces, and a breakfast bar. It is equipped with a Rangemaster cooker with hob and extractor fan. Integrated fridge and space for dishwasher. A glazed door opens directly onto the terrace.
- A utility room and cloakroom complete the ground floor accommodation.
- The principal bedroom features an ensuite bathroom with views to both the front and rear. Two further bedrooms share a family bathroom.
Stairs lead to a further spacious bedroom with its own ensuite shower room.
- Charming converted outbuilding providing a self-contained annexe comprising bedroom, shower room and kitchenette.
- Delightful gardens with charming timber framed period barn and picturesque views of the surrounding fields. A paved terrace provides an ideal setting for outdoor entertaining, a secluded seating area, and a fenced natural pond.
- Services: Mains Water and Electricity. Private Drainage. Oil fired Central Heating
- Additional 1.84 acre paddock available by separate negotiation
- Sevenoaks District Council
- Sevenoaks District Council - Tax Band G
Situation
The Horseshoes occupies a convenient rural position between the Natural Trust Village of Chiddingstone, Bough Beech and Chiddingstone Causeway with its Post Office and Little Brown Jug Public House/Restaurant.
Wider shopping facilities are available from Sevenoaks, Tonbridge and Tunbridge Wells Town Centres all offer a wide range of shopping facilities as well as main line stations to London Charing Cross/Cannon Street. Similar services are available from Hildenborough Main Line Station. Nearby Penshurst Station has services to Tonbridge and Redhill.
There are a good number of well-regarded schools in the local area including Chiddingstone and Leigh Primary Schools. Grammar Schools for both Boys and Girls in Tonbridge and Tunbridge Wells as well as the Weald of Kent girl’s grammar annexe in Sevenoaks. Tonbridge and Sevenoaks Public Schools and a variety of Preparatory Schools in and around Sevenoaks and Tonbridge including Hilden Grange, the Schools at Somerhill and New Beacon. Holmewood House at Langton Green and Walthamstow Hall for Girls.
The A21 gives access to the M25 and motorway network to Gatwick, Heathrow and Stansted airports, Channel Tunnel Terminus and Ports, as well as Ebbsfleet International Terminal and Bluewater.
Leisure facilities include Golf Courses at Hever and Nizels and Sailing at Bough Beech Reservoir. There is also a private health/fitness centre at Nizels. Tonbridge School Sports Centre.
DIRECTIONS
From the A21 join the B245 towards Hildenborough, after about 1.75 miles turn right onto B2027 passing Hildenborough Station. At the T junction turn right and proceed through the Villages of Leigh and Chiddingstone Causeway. Continue for about a further 0.5 mile and The Horseshoes will be found on the right-hand side just after a left hand turning to Chiddingstone.
Floorplan
Local Schools
To discuss this property call our Hildenborough branch:
Market your property
with James Millard
Book a market appraisal for your property today. Our virtual options are still available if you prefer.
