Located in sought-after Crockham Hill, an exquisitely presented Victorian coach house renovated in entirety with flair, sensitivity and exceptional attention to detail. Benefitting from lofty ceiling heights, an abundance of natural light and striking original features to include authentic stable partitioning, the well-proportioned accommodation is as comfortable as it is stylish, blending versatile reception space with three double bedrooms, accompanied by stunning bath and shower rooms. A duo of beautiful walled gardens and plentiful driveway parking complete the profile of this rare prospect. Oxted, with its fast and frequent commuter services to London and broad range of amenities is within a ten minute’ drive, whilst the historic town of Edenbridge located 3 miles to the south, is also convenient for day-to-day shopping needs. Major road networks are accessible via either junction 5 or 6 of the M25 and the surrounding Greenbelt/AONB countryside is renowned for its walking, riding and cycling routes.
- Unique Unlisted Period Home
- Fully Renovated to include Heritage Double Glazing
- High Specification ‘Turn Key’ Finish
- Charming Walled Gardens
- Generous Driveway Parking
- Countryside Views
- Cusp of Village Setting
- Crockham Hill Pre & Primary Schools - 0.6 MIiles
- Kent Grammar School Catchment
- Oxted Station - 4.2 Miles (London Bridge - 34 Minutes)
OVERVIEW:
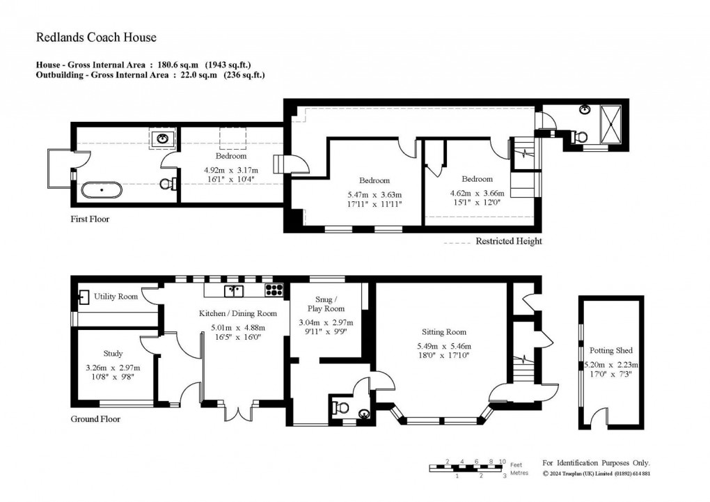
A panelled wooden front door attractively surrounded by bright panes of coloured glass, beckons you through to the entrance hall, where the original function of the building is evident in the charming stable divide and door - complete with its authentic brass latch - all of which has been fastidiously preserved. To the floor are mellow fossil-limestone flags, which similarly extend throughout the dining kitchen and snug. From the hall, a well-proportioned study or occasional fourth bedroom, with oak block flooring arranged in an intricate herringbone pattern, looks out over the crunch gravel driveway, home to a most splendid Ginkgo tree and accommodating up to eight vehicles with ease.
The light and airy dining kitchen forms a striking hub of the home, with bespoke fitted cabinetry in a timeless, traditional design accompanied by an integrated dishwasher, twin butler sink and space for a range style cooker. Painted exposed brick slips to one wall, rhythmically punctuated by frames of textured glazing allowing sunlight to stream through, emphasises the elevated ceiling height. Opposing French doors open invitingly to the walled courtyard garden area port, its beds and borders bursting with a colourful mix of established shrubs and herbaceous perennials under planted by spring bulbs, interlaced by meandering brick paths and terraces, designed to dining and relaxation.
A well-equipped utility room with terracotta flooring and Belfast sink, provides room/plumbing for a washing machine and tall fridge/freezer, together with additional counter space and open shelving.
A cosy snug- most recently used as a playroom - connects to a wide corridor with half-panelled walls and planked oak flooring, complete with a delightful reading nook looking out over the garden and useful cloakroom. To the far end a door opens through to a grandly sized sitting room encompassing a Clearview log burner set atop a slate hearth, its elegant bay window yielding yet another fine garden view.
The first floor accommodation is similarly impressive, comprising three double sized bedrooms, linked by a practical hallway. To one end is a striking wet room with eye-catching chequerboard marble tiled floor, perfectly complemented by glazed terracotta wall tiling from Mandarin Stone, a walk-in shower enclosure and period style Silverdale sanitary ware.
To the opposite end of the first floor is a bathroom certain to charm on all levels, encompassing a double-ended roll top bath with ball and claw feet, WC and bespoke washstand fashioned from an antique singer sewing machine stand.
A capacious loft, boarded for maximum use, can be accessed from one of the bedrooms via a large hatch with drop-down ladder.
Externally, a historic potting shed set within the walled courtyard garden has been cleverly reimagined as a garden room/gym, insulated from the elements via modern Crittall style double glazing, enabling all year round use.
A gate from the walled courtyard garden welcomes you through to a further garden space, also walled and ostensibly laid to level lawn with a glorious outlook over the surrounding AONB countryside. A sheltered , stone paved terrace accompanying and a productive vegetable patch a further thoughtful addition.
LOCATION:
Crockham Hill village offers a local public house, church and well-regarded pre & primary schools. The nearby War Memorial Playing Field hosts cricket and football, whilst also providing a fenced-off area with tennis courts and children’s play area
The towns of Oxted and Edenbridge, approximately three and a half and two miles distant respectively, provide a wide range of facilities including direct line rail services to London. The area is well served for recreational amenities, which include a choice of golf courses, walks and horse riding. The M25 and national motorway network is accessible at Godstone (junction 6) or Chipstead (junction 5), both circa six miles distant and also providing access to Gatwick and Heathrow airports.
SERVICES, INFORMATION.& OUTGOINGS:
Mains water, drainage & electricity. Oil-fired central heating
Council Tax Band: G (Sevenoaks)
EPC: E
Location
Crockham Hill village offers a local public house, church and well-regarded pre & primary schools. The nearby War Memorial Playing Field hosts cricket and football, whilst also providing a fenced-off area with tennis courts and children’s play area. The towns of Oxted and Edenbridge, approximately three and a half and two miles distant respectively, provide a wide range of
facilities including direct line rail services to London. The area is well served for recreational amenities, which include a choice of golf courses, walks and horse riding. The M25 and national
motorway network is accessible at Godstone (junction 6) or Chipstead (junction 5), both circa six miles distant and also providing access to Gatwick and Heathrow airports.
Floorplan
EPC
Local Schools
To discuss this property call our Hildenborough branch:
Market your property
with James Millard
Book a market appraisal for your property today. Our virtual options are still available if you prefer.
