A charming and substantial Grade II Listed period farmhouse, situated in a semi-rural position on the edge of a farm conversion, yet conveniently positioned for Leigh village and with easy access to Hildenborough main line station. Dating back in part to the 17th century, the current vendors have extended and made improvements over the years, creating a well appointed and highly versatile family home arranged over three floors with an abundance of character throughout. There are rural views from the first floor over the surrounding countryside and adjacent field available to rent if required.
- Beautiful Extended Detached Grade II Listed Farmhouse
- Semi-Rural Setting on the Outskirts of the Village
- Elegant Triple Aspect Sitting Room
- Seven Bedrooms & Three Reception Rooms
- Five Bathroom/Shower Rooms & Cloakroom
- Rencraft Kitchen/Breakfast Room
- First Floor Main Bedroom Suite
- Three Further Guest Bedroom Suites
- Private secluded Gardens & Terrace & Gated Driveway
- Adjacent Field Approx 4.5 Acres Available to Rent
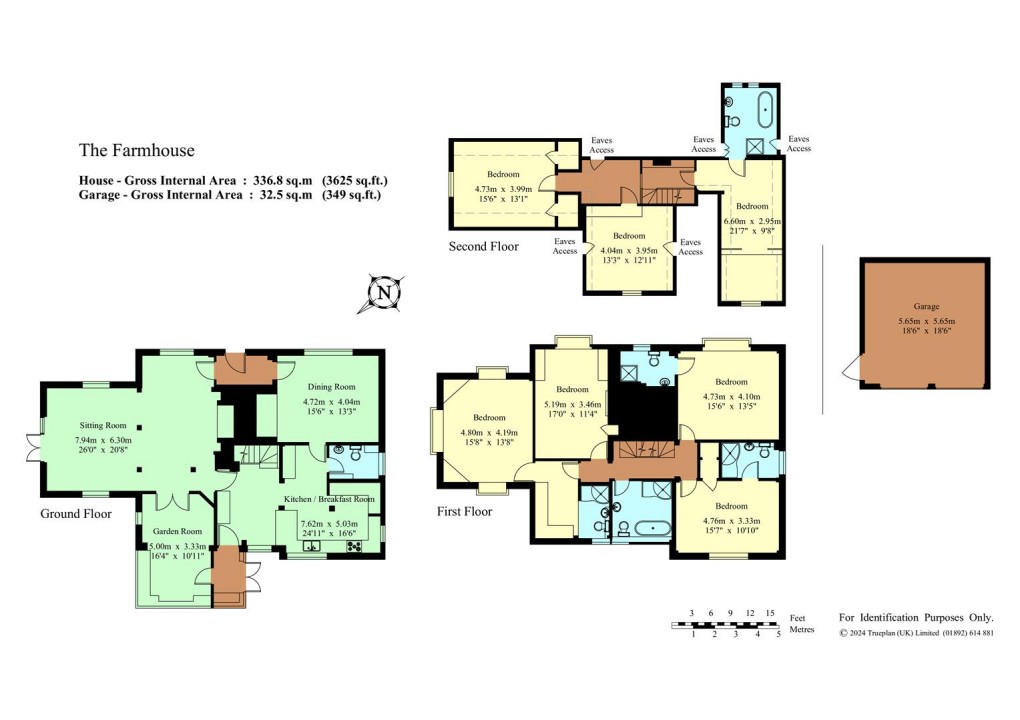
Accommodation:
•Enclosed part glazed entrance porch with wooden stable door leading to the kitchen/breakfast room.
•Kitchen/breakfast room fitted with a range of solid wood painted Rencraft in-frame units, finished with contrasting granite worktops and upstands, including a breakfast bar return. Integrated appliances including a dishwasher, washing machine, two fridges and a freezer, space for range cooker and built in microwave. Exposed beams, ceramic tiled floor, staircase rising to the first floor. Door to cloakroom fitted with a white Heritage suite.
•Formal dining room with lovely aspect over the garden, exposed beams and deep inglenook fireplace. Door leading to the entrance lobby and original front door with portico porch.
•Charming spacious triple aspect sitting room having focal inglenook fireplace, exposed beams and bright extension with French doors opening out onto the rear terrace. Double glazed doors open the space through to the garden room extension, a light and versatile space with outlook over the garden.
•First floor landing with stairs rising to the second floor. Triple aspect main bedroom suite enjoying views over the surrounding countryside and two corner fitted mirrored wardrobes. Walk in dressing room leading to the shower room.
•Two further double bedroom guest suites on the first floor and an additional double bedroom along with a family bathroom with a freestanding Heritage roll top bath, complete the first floor accommodation.
•Second floor landing. Delightful spacious bedroom suite with beamed vaulted ceiling, seating area, eaves storage and private bathroom with freestanding Heritage roll top bath. Two additional double bedrooms, currently utilised as an office and hobbies room, both having eaves storage.
•The property is accessed through Home Farm Close leading to a double garage on the right and electric wooden gates, opening to a private block paved driveway, providing parking for several vehicles.
•Double garage having two wooden up and over doors to front, two gas boilers, meters, fuse board, power and light. Pitched roof with potential for conversion to create a mezzanine/gym/games room subject to planning. Personal door to side and wall mounted electric car charging point.
•The gardens surround the property and are predominantly laid to lawn with an abundance of established shrubs/flower borders, mature trees and hedging providing privacy. The property has a delightful stone terrace which also wraps around the property and can be accessed from the sitting room. Further pretty cottage style walled garden with circular seating area to side. Sensor operated garden lighting.
•Services & Points of Note: All mains services. Gas central heating. Broadband direct to property. Access through Home Farm Close and contribution paid towards the maintenance of the road Wooden double glazed windows and four original Crittall windows with secondary glazing. Property construction 17th century timber framed with Victorian brick exterior. Restricted head height in some doorways. Adjacent field of approximately 4.5 acres available to rent by separate negotiation.
•Council Tax: G – Sevenoaks Borough Council. EPC: Exempt – Grade II Listed
Leigh
The Farmhouse is located in a semi-rural position on the outskirts of the highly sought after village of Leigh, surrounded by countryside yet conveniently situated for access to local amenities and Hildenborough main line station offering services to London Bridge, London Waterloo East and London Charing Cross. This picturesque village is renowned for its mock Tudor listed buildings and pretty village green, where cricket is played during the summer months. Amenities include a primary school, church, village store, post office and Leigh railway station (Victoria and Tonbridge/Redhill line). The towns of Sevenoaks and Tonbridge are also nearby both offering a comprehensive range of shops, boutiques, restaurants and leisure facilities. There are numerous excellent schools in the area including, Sevenoaks School, Sevenoaks Prep, Schools at Somerhill, New Beacon, Weald of Kent and Tonbridge Girls Grammar School, Judd School for Boys, Hilden Grange Preparatory School and the renowned Tonbridge Public School. Recreational facilities in the area include, Sevenoaks Leisure Centre, golf at Nizels and Poult Wood, cricket at The Vine and numerous local sporting clubs. The property is conveniently situated for the A21, providing links to the national motorway network, Gatwick, Stansted and Heathrow Airports, The Channel Tunnel and the Kent coast.
Floorplan
Local Schools
To discuss this property call our Hildenborough branch:
Market your property
with James Millard
Book a market appraisal for your property today. Our virtual options are still available if you prefer.
